Daedalus Workshop Logo
architecture, planning, interiors & design

   Bangkok Townhouse II
   Laser & Skin Institute
   Penthouse Studio
   Hell's Kitchen
   Manhattan Dermatologic Health
   Bangkok Townhouse I
   Gramercy Kitchen
   14th Street Studio
   Turtle Bay Loft Conversion

 
 
Manhattan Dermatologic Health »  1  2  3  4  5  6  7  «   

A Dermatologist starting his own practice wanted an office that would be modern yet inviting. Intent on utilizing the latest technologies for billing, patient registration and maintaining medical records, he also wanted to convey a sense of comfort, warmth and calm for his patients.

Project Team: Richard Lucas, Daiki Kato
Custom Artwork: DM Art www.dmart-ny.com
www.manhattandermhealth.com
Collaborating with the Doctor on everything from the design of his office and website to the company logo, business cards and staff uniforms, the goal was to create an overall patient experience that was relaxed and stress-free; an experience that would feel more like walking into a living room rather than arriving at a medical institution.
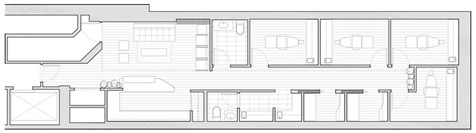
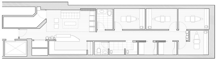
Located on the Lower Level of a 10-story Medical Arts building on Manhattan’s Upper Eastside, the 1,000 square foot raw space was characterized by long and narrow proportions with an egress stair, Mechanical Room and various drains, conduits and pipes protruding into the buildable area.
Programmatic requirements for the office were split into zones of public, private and service related functions. The publicly oriented Waiting and Reception area leads to a hallway with 4 private Exam Rooms and a patient Restroom on one side separated from the service spaces such as a Lab, Kitchenette, Consult Offices and a Staff Restroom on the other.
Bamboo flooring, custom oak cabinetry, fabric wallcovering, changes in ceiling height, and a bold yet inviting color scheme set the overall tone for the office design, while a variety of textures and lighting, plants, a bamboo forest mural and custom artwork complete the scene for a rich yet calming environment.
Building Management coordinated construction and specified Exam Room accessories in accordance with their building standards. They also established the overall budget, which provided a modest allowance for flooring, wall finishes, lighting and hardware. The Doctor opted for upgrades in several of the finishes and specified electronic medical records and telecommunications systems, medical equipment and computer software.
Daedalus Workshop provided comprehensive design services for the office, including the design and coordination of custom cabinetry work, assisting the Doctor in establishing the overall branding concept for the practice and incorporating some of the medical equipment within the overall office design, and also worked very closely with the Contractors, Building Management and various trades during Construction.